1 / 22B Carr Street, BRIGHTON EAST, VIC, 3187
About the property
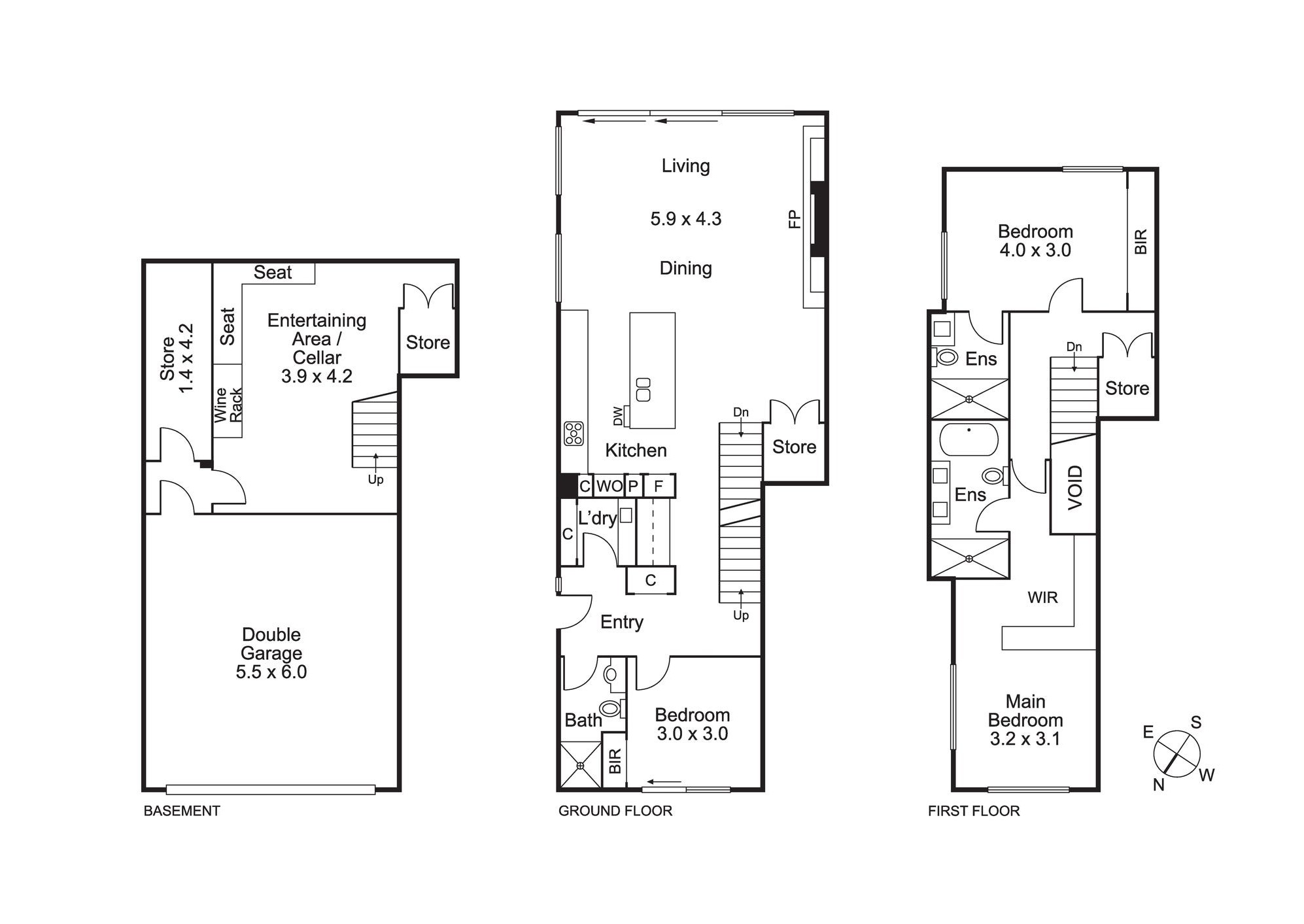
Bayside living is at its best with this beautifully architecturally designed town residence, with contemporary finishes and only one of three at the end of a tranquil cul-de-sac. Stunning natural light floods through all three levels and with versatile indoor-outdoor entertaining spaces and a wine cellar it is a great entertainer. The open plan living and dining area are defined by floor to ceiling windows, stunning timber chevron floors, a gas fireplace with beautiful marble detail which flows out to the landscaped garden. The gourmet kitchen includes a marble benchtop with splashback and hosts a suite of miele appliances including double oven, gas cooktop and integrated dishwasher. The crisp clean lines continue up the staircase to the first floor to two generous sized bedrooms. The master suite has walk-in robes and a sparkling ensuite with double stone vanity and rain shower. The second bedroom has its own ensuite and built in robe while you will find the third bedroom on the ground floor. The residence is complimented with a second living area in the basement, abundant storage throughout, laundry, central bathroom, separate powder room and a secure double garage. This impeccably designed town residence is positioned at an easy stroll to Dendy Park, Brighton Golf Course and Patterson train station. With a choice of excellent schools nearby, Hampton Street shops and cafes and beachside lifestyle.
-- Inspection by private appointment
Inspections
No inspections scheduled





